Edificio Ernest Prat
Un nuevo concepto de vivienda sostenible. Edificio plurifamiliar con 36 viviendas. Situado en El Prat de Llobregat, Barcelona.
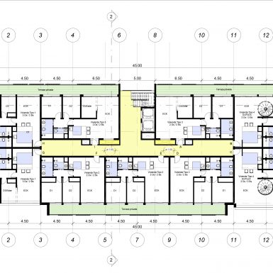
Se trata de un proyecto de nueva construcción de un edificio plurifamiliar con 36 viviendas, dos de ellas Dúplex y 44 aparcamiento, situado en la calle Ernest Lluch del municipio El Prat de Llobregat, provincia de Barcelona. Se Proyecta un edificio con fachada a Ernest Lluch, Formado por una Planta sótano, Planta baja, planta primera, planta segunda, planta tercera y planta ático. La planta sótano se destina a aparcamiento y cuenta con 40 plazas y trasteros. En la Planta Baja se ubica el vestíbulo de acceso a las viviendas y al aparcamiento y 9 viviendas, cada una de ellas cuenta con un espacio exterior de terraza de dimensiones variables. En la parte exterior se encuentran 4 aparcamientos para 4 de las viviendas de esta planta, conectadas por el jardín. La planta primera y segunda cuentan con 9 viviendas, cada una de ellas tiene un espacio exterior de terraza de dimensiones variables. La planta tercera cuenta con dos tipologías diferentes; 7 viviendas y 2 dúplex conectados con la planta ático, cada una de ellas tiene un espacio exterior de terraza de dimensiones variables. La planta ático cuenta con el segundo nivel de los dos dúplex de planta tercera con sus respectivas terrazas. También se colocarán tanto los elementos necesarios para las instalaciones de Aerotermia como la zona de terraza comunitaria y tendederos. La comunicación vertical del edificio se realiza mediante un núcleo vertical formado por la escalera y un ascensor accesible que comunican todas las plantas, incluidas sótano y ático.

Promotor: Privado
Arquitecto: Orlando De Urrutia
Colaboradores:
Localización: El Prat de Llobregat, Barcelona
Estado: Proyecto
Fecha:





