Emotion Ecocyber Suite
Un nuevo concepto de turismo sostenible, apartamentos turísticos en Castellbell y El Vilar.
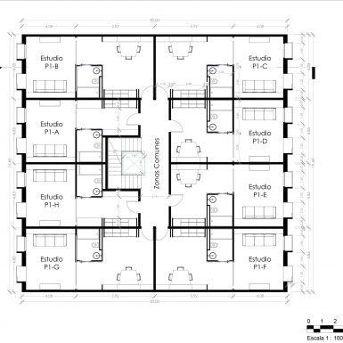
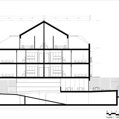
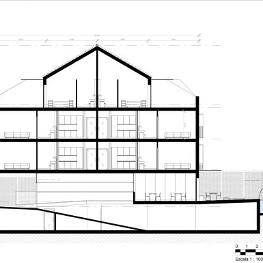
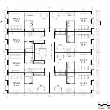
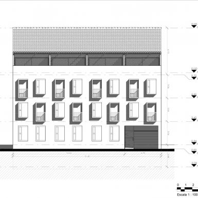
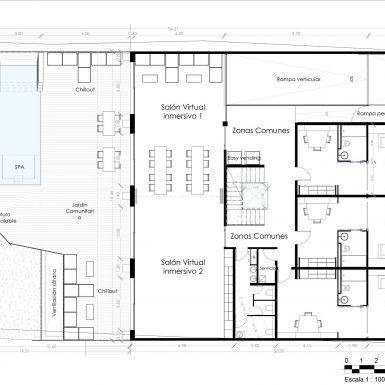
Se trata de un proyecto de nueva construcción de apartamentos turísticos con 8 Dúplex, 11 estudios y 20 plazas de aparcamiento situado en la calle Bauma , del municipio Castellbell y El Vilar, ubicado en la provincia de Barcelona. Se Proyecta de un edificio con fachada a la calle Bauma Formado por una Planta sótano, Planta baja, Planta primera, Planta Segunda y planta Altillo. La edificación se proyecta adosado a las medianeras de los edificios con los que linda, dejando un patio en la parte trasera del solar, para garantizar la iluminación y ventilación natural y dar cumplimiento a la profundidad edificable. Todas los apartamentos tienen ventilación natural. La planta sótano se destina a aparcamiento, donde se encuentra también el deposito de aguas lluvias y el vaso de la piscina. En la Planta Baja se ubica el vestíbulo de acceso a los apartamentos y al aparcamiento, zonas comunes y jardín comunitario y 3 estudios. La comunicación vertical del edificio se realiza mediante un núcleo vertical formado por la escalera y un ascensor accesible que comunican todas las plantas, incluidas sótano y altillo. La planta Primera cuenta con 8 estudios, todos los estudios cuentan con un espacio exterior (balcones) que permiten la salida a fachada principal o a fachada trasera. La planta Segunda cuenta con 8 estudios dúplex conectados con planta altillo. Todos los apartamentos cuentan con espacio exterior; en planta segunda con balcones y en planta altillo con terrazas, que permiten la salida a fachada principal o a fachada trasera.
Promotor: Privado
Arquitecto: Orlando De Urrutia
Colaboradores:
Localización: Castellbell y El Vilar
Estado: Proyecto
Fecha: 2019