Ir al contenido principal

Casa Ecocibernética

Casa privada

Casa Ecocibernética

Casa-Pujolar-DeUrrutia

Promotor: Privado
Arquitecto: Orlando De Urrutia
Colaboradores: Orlando De Urrutia & Asociados
Localización: Roses, Gerona, España
Estado: Construido
Fecha: 2017


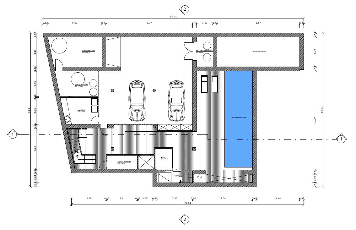
Casa-Pujolar-DeUrrutia
Casa-Pujolar-DeUrrutia
Casa-Pujolar-DeUrrutia
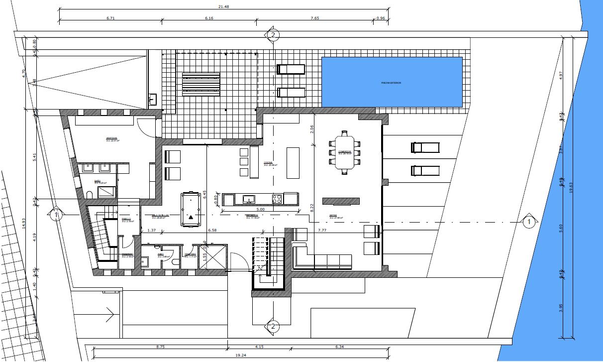
Casa-Pujolar-DeUrrutia
Casa-Pujolar-DeUrrutia
Casa-Pujolar-DeUrrutia
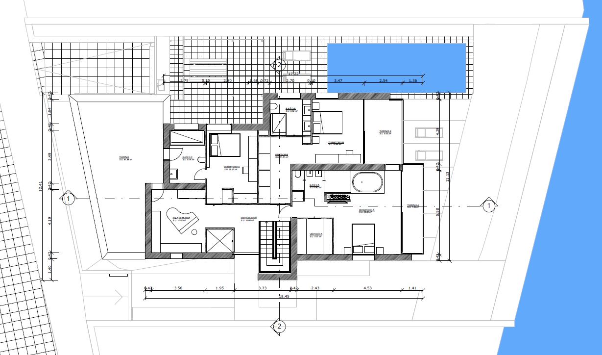
Casa-Pujolar-DeUrrutia
Casa-Pujolar-DeUrrutia
Casa-Pujolar-DeUrrutia
Casa-Pujolar-DeUrrutia
Casa-Pujolar-DeUrrutia
Casa-Pujolar-DeUrrutia
Casa-Pujolar-DeUrrutia

¿Te interesa un proyecto como este?